Bouwen van Tiny House met kelderverdieping ( VERHUURD )
Dit zeer modern en enorm energetisch Tiny House, vloerverwarming met warmtepomp en zonnepanelen , wordt gebouwd in een zeer rustig gelegen binnen gebied aan de rand van St Niklaas.
De zeer grote grondoppervlakte ( 3000 m2) met achterliggende paarde wei maken van dit project iets uniek.
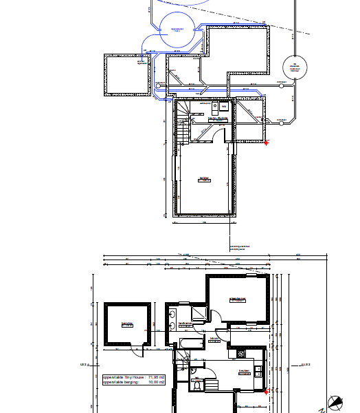
De oppervlakte van de gelijkvloerse verdieping bedraagt 80 m2 met daarin de living, open keuken, gastentoilet, badkamer met ligbad en douche en een zeer ruime slaapkamer.
Er is ook een kelderverdieping, van 35 m² aanwezig met een afgesloten kamer ( 10m² ) waarin de warmtepomp en de wasplaats is voorzien.
Naast de woning bevindt zich de gesloten tuinberging van 10m²
Aan de inrit van het terrein is er een carport ( met oplaadstation voor elektrische auto’s) en een fietsenberging.
De werken worden gestart in maart 2024 en het hele project zal klaar zijn in december 2024
Algemeen
-
Grondoppervlakte:80 m²
-
Oppervlakte bewoonbaar:110 m²
-
Kamers:5
-
Slaapkamers:2
-
Badkamers:1
-
Garages:1
-
Tuin (m²):3000
-
Terras (m²):25
-
Orientatie achtergevel:noord
-
Elektriciteitskeuring:conform




