Gelijkvloers appartement achteraan
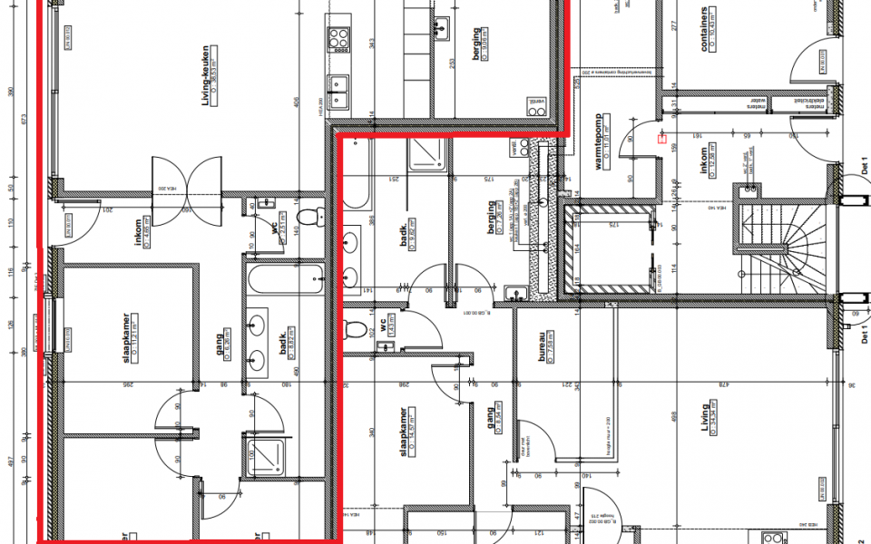
Dit gelijkvloers appartement is gelegen achteraan het gebouw. Er zijn 3 slaapkamers aanwezig en een badkamer met dubbel lavabomeubel, ligbad en inloop douche. Alles is modern en hoog kwalitatief ingericht. Een mooi, zeer groot terras met privatieve tuin maken het zeer aangenaam om hier te wonen. De verwarming is met een collectieve warmtepomp waarvoor de nodige elektriciteit wordt opgewekt door zonnepanelen. Dubbel elektrisch oplaadpunt is voorzien vooraan het gebouw
De overdekte autostaanplaats achteraan de tuin is inbegrepen in de huurprijs.
Er wordt een maandelijkse provisie van 160 euro gerekend voor de verwarming, het verbruik van warm water en het poetsen van de vaste ramen.
De appartementen zullen vanaf 1 oktober afgewerkt en beschikbaar zijn.
Algemeen
-
Grondoppervlakte:110 m²
-
Oppervlakte bewoonbaar:110 m²
-
Kamers:7
-
Slaapkamers:3
-
Badkamers:1
-
Garages:1
-
Tuin (m²):60
-
Terras (m²):25
-
Orientatie achtergevel:noord
-
Elektriciteitskeuring:conform




