appartement eerste verdieping rechts
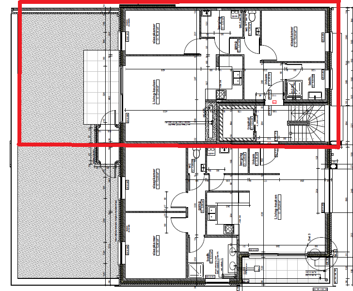
Dit appartement bevindt zich op de eerste verdieping en is bereikbaar met de lift of via een trap. Een lichtrijke living met open keuken, 2 slaapkamers een badkamer met inloop douche en zeer groot terras maken het zeer aangenaam om wonen. Er kan ook een parkeerplaats ( carport achteraan of vooraan het gebouw ) bij gehuurd worden. Het appartement wordt verwarmd met vloerverwarming die de warmte krijgt via een gemeenschappelijke warmtepomp ( grond/water). Achteraan is er nog een grote gemeenschappelijke mooi aangelegde tuin. In het hele appartement is vaste verlichting voorzien. Er zijn ook oplaadpunten voor elektrische auto’s voorzien.
Algemeen
-
Grondoppervlakte:76 m²
-
Oppervlakte bewoonbaar:76 m²
-
Kamers:6
-
Slaapkamers:2
-
Badkamers:1
-
Garages:1
-
Terras (m²):20
-
Orientatie achtergevel:noord
-
Elektriciteitskeuring:conform




